
Book A Viewing
All fields are required
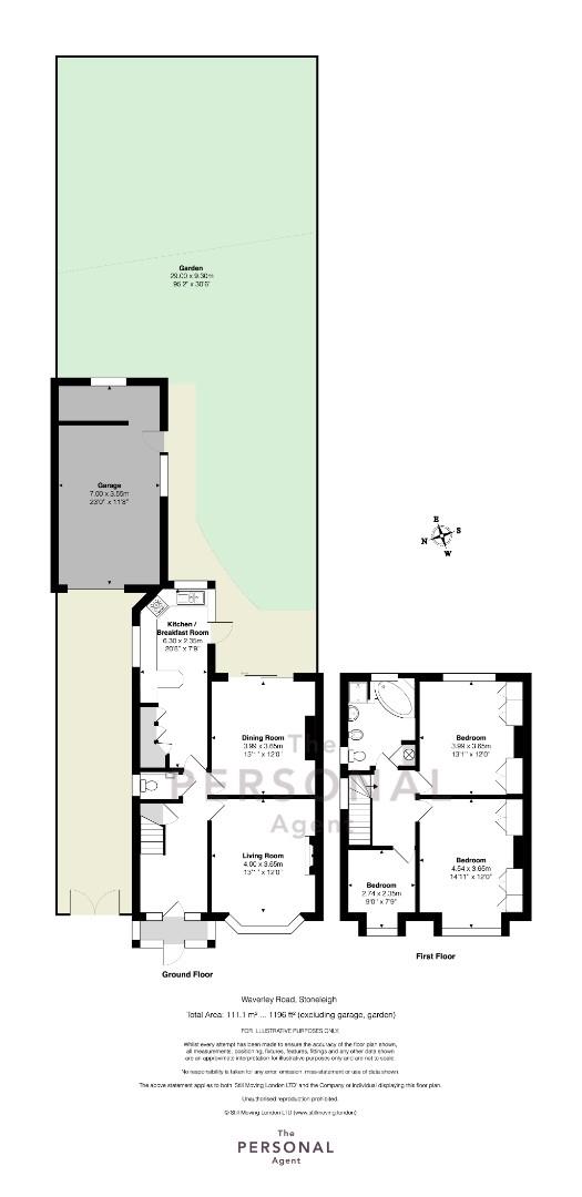
Waverley Road, Stoneleigh 3 bed semi-detached house for sale
Features
- Semi-Detached Home
- Three Bedrooms
- Two Reception Rooms
- Kitchen/Breakfast Room
- Downstairs W/C
- 95ft Easterly Facing Garden
- Garage
- Walk to Shops & Station
DESCRIPTION
The Personal Agent proudly presents this three bedroom semi-detached home, offering two reception rooms, kitchen/breakfast room, detached garage and a 95ft Easterly facing garden.
This property is situated in one of Stoneleigh’s most sought after locations, just minutes walk from Stoneleigh Broadway and railway station, as well as local schools.
DESCRIPTION
The Personal Agent proudly presents this three bedroom semi-detached home, offering two reception rooms, kitchen/breakfast room, detached garage and a 95ft Easterly facing garden.
This property is situated in one of Stoneleigh’s most sought after locations, just minutes walk from Stoneleigh Broadway and railway station, as well as local schools.
BOOK A VIEWING
Secure your priority viewing of this property by using the 'Book a viewing' form below or messaging us via WhatsApp.




