
Book A Viewing
All fields are required
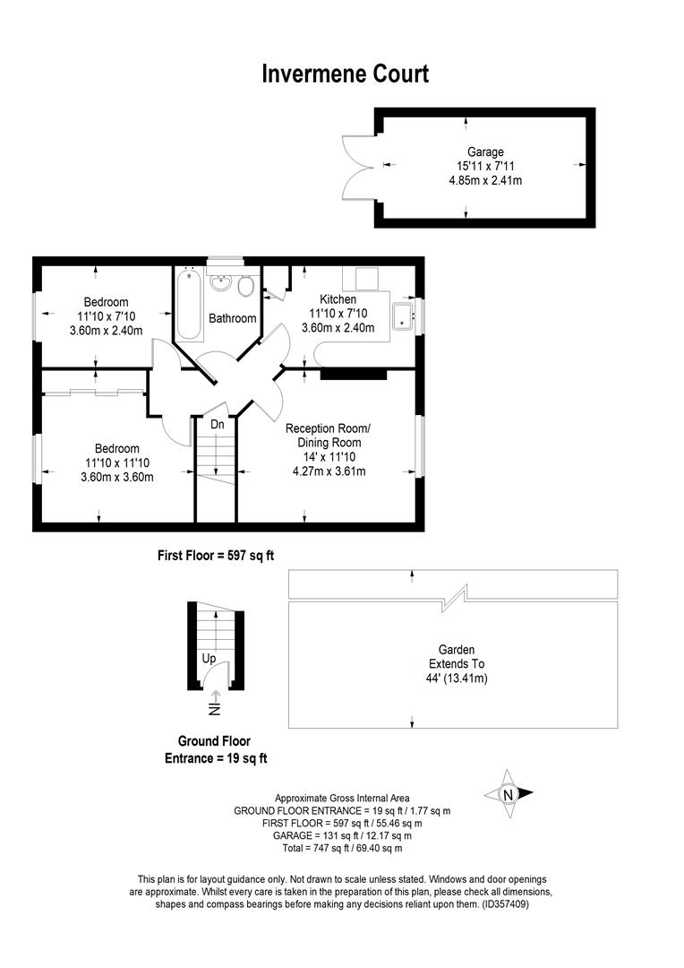
Epsom Road, Epsom 2 bed maisonette sold
Features
- First Floor Maisonette
- Two Double Bedrooms
- Private 40ft Rear Garden
- Lounge/Diner & Separate Fitted Kitchen
- Main bathroom
- Garage In Block & Parking
- Private Front Door & Entrance
- Walk to Ewell Village & Epsom
- Long Remaining Lease (930 Years)
- Close To Excellent Schools
DESCRIPTION
Situated in a practical location almost equidistant of Epsom Town Centre and Ewell Village – both of which are within walking distance, this spacious first floor maisonette is offered to the market with a large private garden, garage and parking.
Ideal for first-time buyers or buy-to-let investors, this property benefits from low monthly outgoings and well balanced accommodation. The property layout comprises a private entrance and front door, two genuine double bedrooms, lounge/dining room and fitted kitchen and bathroom with white suite. The property was refurbished in 2019 including flooring, carpeting, and painting.
Further noteworthy points to mention include double glazing, gas central heating, sole use of a large loft space, new boiler installed in 2021 and a long remaining lease of 930 years.
DESCRIPTION
Situated in a practical location almost equidistant of Epsom Town Centre and Ewell Village – both of which are within walking distance, this spacious first floor maisonette is offered to the market with a large private garden, garage and parking.
Ideal for first-time buyers or buy-to-let investors, this property benefits from low monthly outgoings and well balanced accommodation. The property layout comprises a private entrance and front door, two genuine double bedrooms, lounge/dining room and fitted kitchen and bathroom with white suite. The property was refurbished in 2019 including flooring, carpeting, and painting.
Further noteworthy points to mention include double glazing, gas central heating, sole use of a large loft space, new boiler installed in 2021 and a long remaining lease of 930 years.
BOOK A VIEWING
Secure your priority viewing of this property by using the 'Book a viewing' form below or messaging us via WhatsApp.




