
Book A Viewing
All fields are required
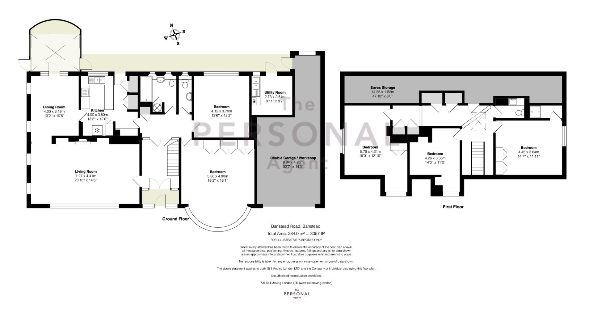
Banstead Road, Banstead 5 bed detached house sold
Features
- A bold corner plot of 0.43 of an acre
- Over 3000 Sq Ft of accommodation
- Close to Cuddington golf club
- Moments from Priest Hill Nature Reserve
- Short distance to Banstead station
- 107ft x 79ft beautiful rear garden
- Large frontage with carriage driveway
- Further side garden on Cuddington Way
- Five bedrooms
- Two reception rooms
DESCRIPTION
Sat on a bold corner plot of 0.43 of an acre, The Personal Agent are proud to present this attractive detached chalet style home that offers over 3000 Sq Ft of space and is situated within a sought after area and just a short walk from Cuddington Golf Course and the picturesque Priest Hill Nature Reserve.
As well as enjoying well proportioned and balanced accommodation, the property still offers a fantastic amount of potential for the new owners to put their own stamp on it from both a decorative and extension point of view STPP.
DESCRIPTION
Sat on a bold corner plot of 0.43 of an acre, The Personal Agent are proud to present this attractive detached chalet style home that offers over 3000 Sq Ft of space and is situated within a sought after area and just a short walk from Cuddington Golf Course and the picturesque Priest Hill Nature Reserve.
As well as enjoying well proportioned and balanced accommodation, the property still offers a fantastic amount of potential for the new owners to put their own stamp on it from both a decorative and extension point of view STPP.
BOOK A VIEWING
Secure your priority viewing of this property by using the 'Book a viewing' form below or messaging us via WhatsApp.




