
Book A Viewing
All fields are required
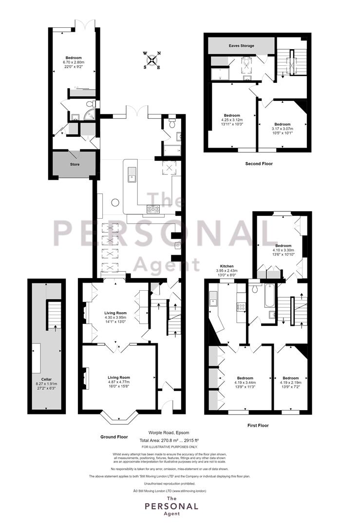
Worple Road, Epsom 6 bed semi-detached house sold
Features
- Attractive halls adjoining character home
- Offering 2915 sq ft of accommodation
- Unique & flexible layout
- Three Shower Rooms + Family Bathroom
- Two large reception rooms
- Stunning kitchen/dining/family room
- Six generous double bedrooms
- Driveway with parking & garage space
- Wonderfully secluded rear garden
- Close to Town, Station & Schools
DESCRIPTION
Set within a desirable residential road, this Victorian halls adjoining character home provides over 2900 sq ft of space and is not only excellently positioned within the catchment areas of outstanding primary and secondary schools, but also just a short distance away from Epsom town centre, local parks and the railway station.
The unique and flexible layout of this home alongside the charm, position and beautiful rear garden present the ultimate first impression with the property enjoying a great amount of natural light throughout, and the perfect opportunity to create your dream family home set within this fantastic location. The high ceilings with their ornate coving immediately set the tone for the overall feel of the property.
The position within Worple Road is also truly enviable, the property itself enjoys a welcoming and homely feel the moment you step into the large entrance hall. Coupled with the generous and flexible space it provides and the numerous stand out features that genuinely deliver that wow factor, finding a more unique home within this location will be a very difficult task indeed.
DESCRIPTION
Set within a desirable residential road, this Victorian halls adjoining character home provides over 2900 sq ft of space and is not only excellently positioned within the catchment areas of outstanding primary and secondary schools, but also just a short distance away from Epsom town centre, local parks and the railway station.
The unique and flexible layout of this home alongside the charm, position and beautiful rear garden present the ultimate first impression with the property enjoying a great amount of natural light throughout, and the perfect opportunity to create your dream family home set within this fantastic location. The high ceilings with their ornate coving immediately set the tone for the overall feel of the property.
The position within Worple Road is also truly enviable, the property itself enjoys a welcoming and homely feel the moment you step into the large entrance hall. Coupled with the generous and flexible space it provides and the numerous stand out features that genuinely deliver that wow factor, finding a more unique home within this location will be a very difficult task indeed.
BOOK A VIEWING
Secure your priority viewing of this property by using the 'Book a viewing' form below or messaging us via WhatsApp.




