
Book A Viewing
All fields are required
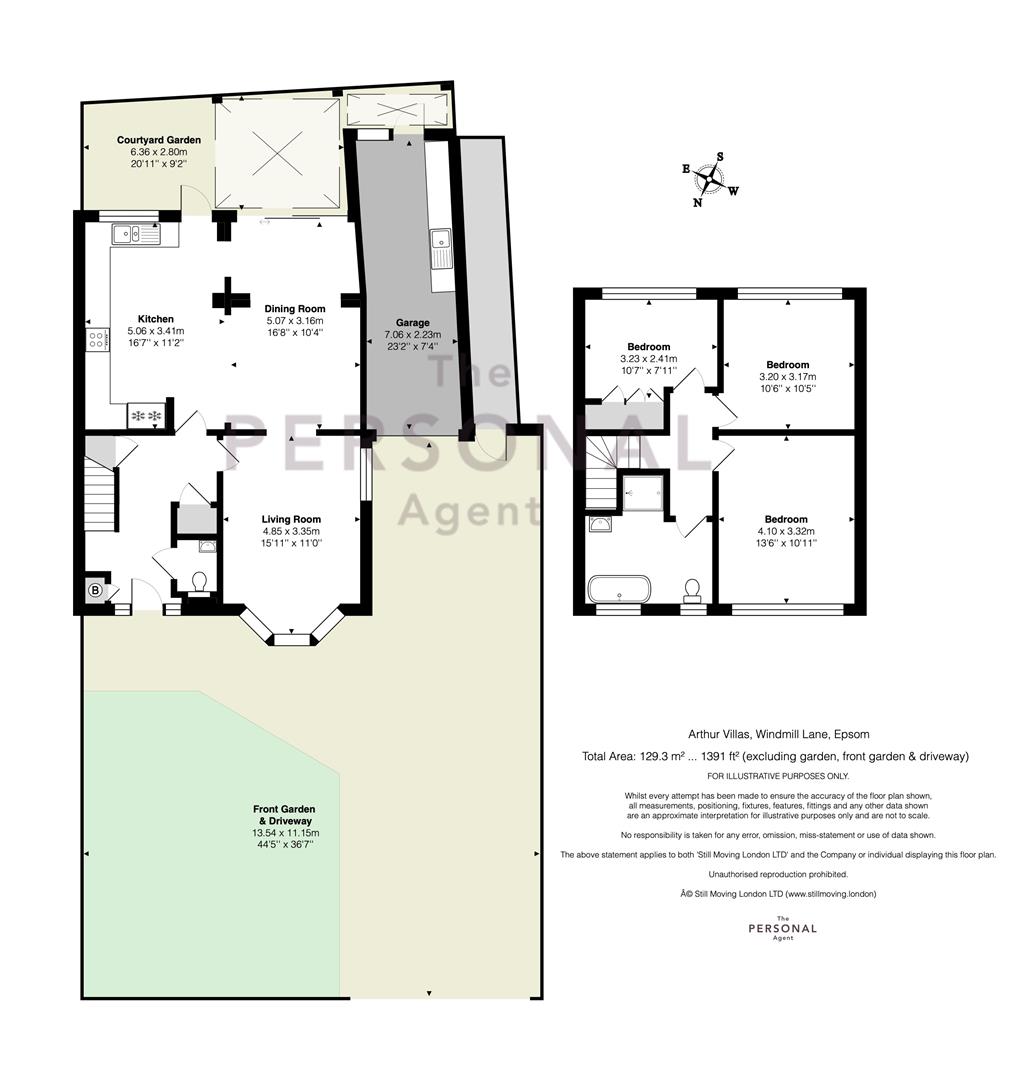
Windmill Lane, Epsom 3 bed semi-detached house sold stc
Features
- Central Wallace Fields location
- Tucked away position
- Three generous bedrooms
- Large kitchen/dining room
- Separate spacious living room
- Downstairs cloakroom
- Large modern bathroom suite
- Tandem garage & utility room
- Moments from park & schools
- Fully refurbished within the last 7 years
DESCRIPTION
Set within the sought after Wallace Fields area and enjoying a tucked away positon within a cul-de sac of just four homes, this fine home dates back to 1873 and has been the subject of a full refurbishement program in recent years that has created a practical and modern family home that enjoys 1391 Sq. Ft.
Located within the heart of the desirable and rarely available Wallace Fields area, the property sits within a stone’s throw of the much requested infant and primary schools and also within the catchment area for outstanding Glyn and Rosebery secondary schools.
The property is within walking distance and equidistant of Epsom railway station and East Ewell station with excellent links serving both London Victoria, Waterloo and London Bridge.
As well as enjoying well proportioned and balanced accommodation, the property still offers a fantastic amount of potential for the new owners to put their own stamp on it from an extension point of view STPP.
DESCRIPTION
Set within the sought after Wallace Fields area and enjoying a tucked away positon within a cul-de sac of just four homes, this fine home dates back to 1873 and has been the subject of a full refurbishement program in recent years that has created a practical and modern family home that enjoys 1391 Sq. Ft.
Located within the heart of the desirable and rarely available Wallace Fields area, the property sits within a stone’s throw of the much requested infant and primary schools and also within the catchment area for outstanding Glyn and Rosebery secondary schools.
The property is within walking distance and equidistant of Epsom railway station and East Ewell station with excellent links serving both London Victoria, Waterloo and London Bridge.
As well as enjoying well proportioned and balanced accommodation, the property still offers a fantastic amount of potential for the new owners to put their own stamp on it from an extension point of view STPP.
BOOK A VIEWING
Secure your priority viewing of this property by using the 'Book a viewing' form below or messaging us via WhatsApp.




