
Book A Viewing
All fields are required
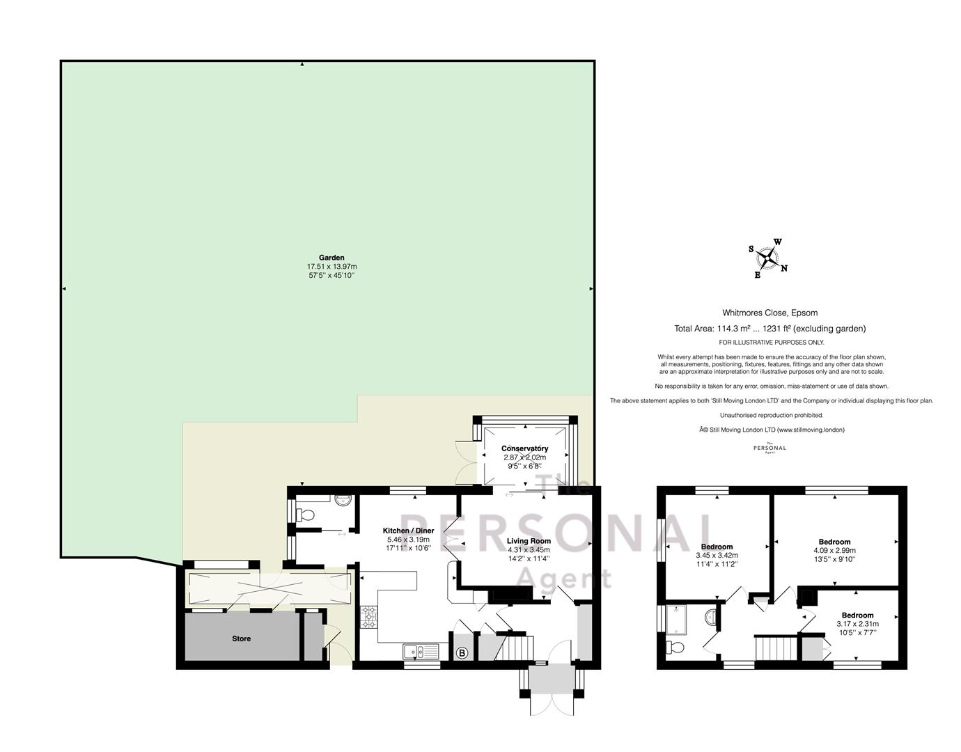
Whitmores Close, Epsom 3 bed semi-detached house sold
Features
- No ongoing chain
- Requires modernisation
- Scope to extend STPP
- Three generous bedrooms
- Living room & sun room
- Kitchen/diner
- Downstairs cloakroom
- Utility/covered vestibule & store
- 57ft x 45ft South/Westerly garden
- Walk to town, station & schools
DESCRIPTION
Located within a popular residential cul-de sac just a short walk from the highly regarded Rosebery girls school, this three bedroom semi detached house is offered to the market with no ongoing chain and offers well balanced accommodation that also benefits from huge scope to extend (subject to the usual planning consents).
The property is within easy walking distance of Epsom town centre, railway station and local amenities. There is a large driveway to the front which offers off street parking for multiple vehicles and a brick built utility/storage room with w/c to the rear.
Whilst it is undeniable that the property requires full updating and general modernisation, we believe that this flexible home offers the perfect opportunity for the new owner to place their own stamp on the property, customise to individual tastes and essentially create their dream home. The property offers scope to extend STPP and should be viewed for what it currently is and what it could potentially be.
DESCRIPTION
Located within a popular residential cul-de sac just a short walk from the highly regarded Rosebery girls school, this three bedroom semi detached house is offered to the market with no ongoing chain and offers well balanced accommodation that also benefits from huge scope to extend (subject to the usual planning consents).
The property is within easy walking distance of Epsom town centre, railway station and local amenities. There is a large driveway to the front which offers off street parking for multiple vehicles and a brick built utility/storage room with w/c to the rear.
Whilst it is undeniable that the property requires full updating and general modernisation, we believe that this flexible home offers the perfect opportunity for the new owner to place their own stamp on the property, customise to individual tastes and essentially create their dream home. The property offers scope to extend STPP and should be viewed for what it currently is and what it could potentially be.
BOOK A VIEWING
Secure your priority viewing of this property by using the 'Book a viewing' form below or messaging us via WhatsApp.




