
Book A Viewing
All fields are required
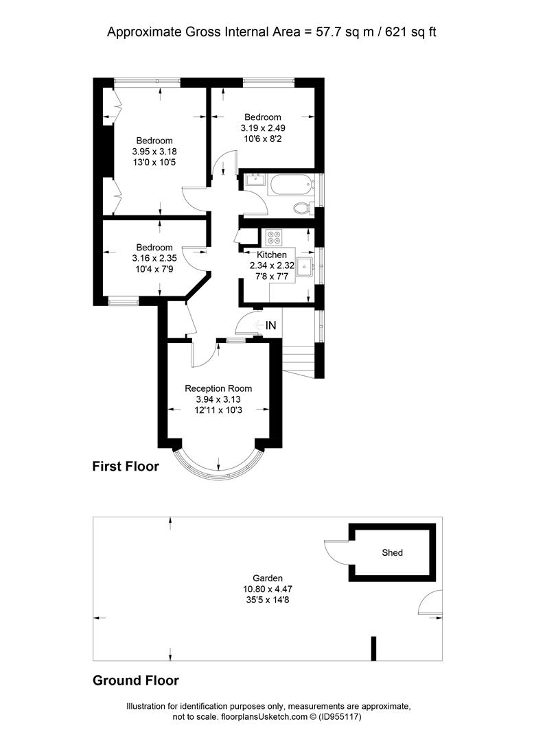
Lewins Road, Epsom 3 bed maisonette sold
Features
- Heart of conservation area
- Beautiful outlook over green & woodland
- Just a 12 minute walk to High Street/Station
- First floor maisonette
- Three bedrooms
- Bay fronted living room with views
- Fitted kitchen & white bathroom suite
- Private 35ft rear garden with shed/utility area
- Flexible & bright accommodation
- Useful loft storage space
DESCRIPTION
Located within the highly desirable Stamford Green conservation area on the periphery of Epsom Common, this first floor maisonette benefits from a fantastic position with woodland walks and green open spaces just across the road, as well as access to a private garden and a wonderful outlook to the front that really sets this property apart from the crowd.
The well designed accommodation provides the perfect layout for practical living with a huge amount of flexibility that could suit a number of differing buyer types. So whether you are a first time buyer who is looking for a semi-rural feel with all the practicalities of town centre living, or a family considering great school catchment or even a discerning downsizer looking for a peaceful and tranquil spot to retire, this property really hits the mark on every count.
Set within the heart of the Stamford Green conservation area, which is bordered by the ancient woodland of Epsom Common with its bridle and cycle paths linking Horton Country Park and Ashtead Common. Approximately 150 meters from the property is the picturesque green, duck pond and the public house, with the town centre and railway station just a ten minute walk away it is hard to imagine a better located maisonette.
DESCRIPTION
Located within the highly desirable Stamford Green conservation area on the periphery of Epsom Common, this first floor maisonette benefits from a fantastic position with woodland walks and green open spaces just across the road, as well as access to a private garden and a wonderful outlook to the front that really sets this property apart from the crowd.
The well designed accommodation provides the perfect layout for practical living with a huge amount of flexibility that could suit a number of differing buyer types. So whether you are a first time buyer who is looking for a semi-rural feel with all the practicalities of town centre living, or a family considering great school catchment or even a discerning downsizer looking for a peaceful and tranquil spot to retire, this property really hits the mark on every count.
Set within the heart of the Stamford Green conservation area, which is bordered by the ancient woodland of Epsom Common with its bridle and cycle paths linking Horton Country Park and Ashtead Common. Approximately 150 meters from the property is the picturesque green, duck pond and the public house, with the town centre and railway station just a ten minute walk away it is hard to imagine a better located maisonette.
BOOK A VIEWING
Secure your priority viewing of this property by using the 'Book a viewing' form below or messaging us via WhatsApp.




