
Book A Viewing
All fields are required
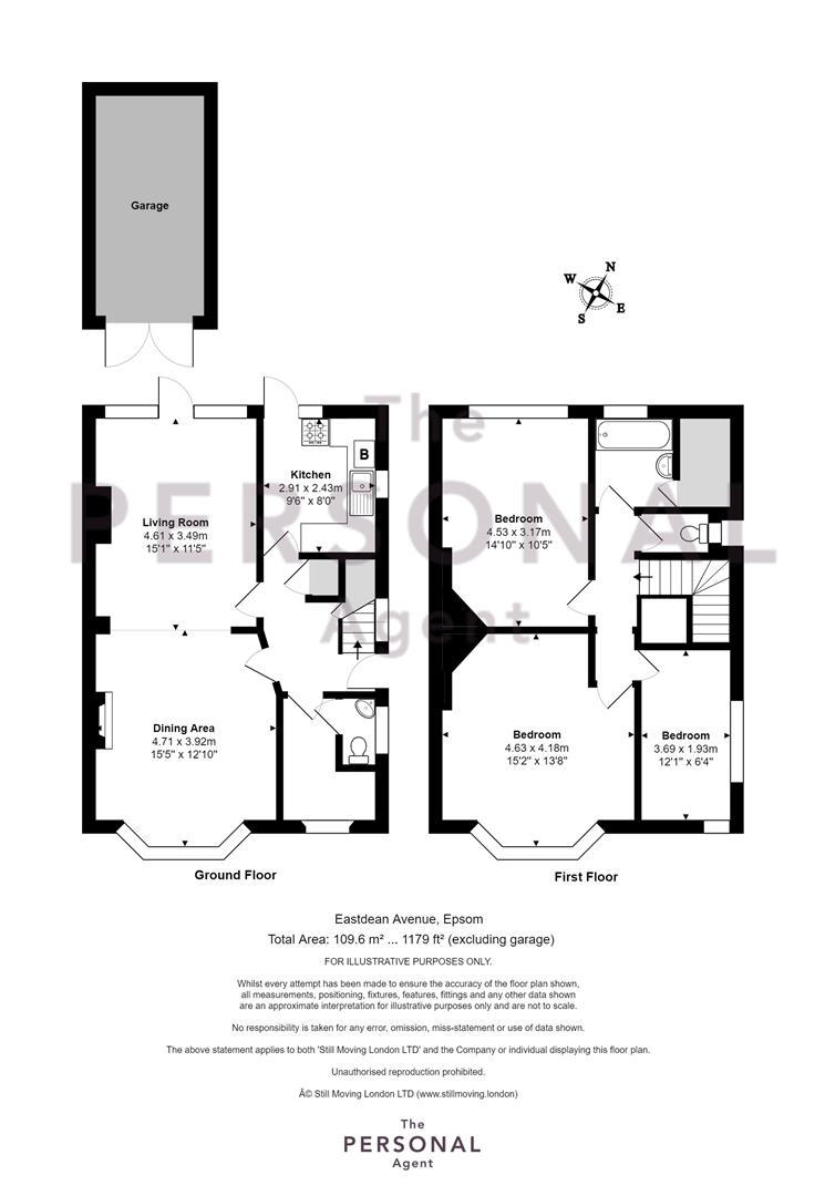
Eastdean Avenue, Epsom 3 bed semi-detached house sold
Features
- No ongoing chain
- Direct garden access onto Stamford Green
- Attractive semi-detached home
- Scope to extend STPP
- Three bedrooms
- Two reception rooms
- Off street parking and garage
- Fantastic school catchment
- Easy walk to Town & Station
- Conservation area
DESCRIPTION
*NO CHAIN* Located within a highly desirable road with a garden that provides direct access to the Stamford Green conservation area, this attractive semi-detached home is offered to the market with no ongoing chain and the added benefit of the possibility to extend (subject to planning permissions).
Having been an extremely well loved home for the previous owner for many years, the property could suit professional couples, young families or even downsizers alike. So if you are looking to enjoy the convenience of the location, which is just moments from the town centre and the tranquillity of the conversation area, then look no further. And for the families with younger children, the catchment for the highly regarded Stamford Green Primary School and a choice of outstanding secondary schools nearby is excellent.
In its current configuration the property offers three bedrooms, two reception rooms, kitchen and a family bathroom suite. Such is the rarity of this opportunity, we are inviting applicants to lodge their immediate interest at which point we will arrange your private showing.
DESCRIPTION
*NO CHAIN* Located within a highly desirable road with a garden that provides direct access to the Stamford Green conservation area, this attractive semi-detached home is offered to the market with no ongoing chain and the added benefit of the possibility to extend (subject to planning permissions).
Having been an extremely well loved home for the previous owner for many years, the property could suit professional couples, young families or even downsizers alike. So if you are looking to enjoy the convenience of the location, which is just moments from the town centre and the tranquillity of the conversation area, then look no further. And for the families with younger children, the catchment for the highly regarded Stamford Green Primary School and a choice of outstanding secondary schools nearby is excellent.
In its current configuration the property offers three bedrooms, two reception rooms, kitchen and a family bathroom suite. Such is the rarity of this opportunity, we are inviting applicants to lodge their immediate interest at which point we will arrange your private showing.
BOOK A VIEWING
Secure your priority viewing of this property by using the 'Book a viewing' form below or messaging us via WhatsApp.




