
Book A Viewing
All fields are required
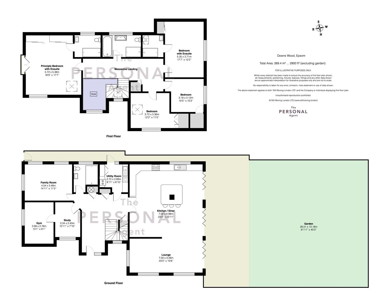
Downs Wood, Epsom 4 bed detached house sold stc
Features
- Approx. 2900 Sq. Ft of accommodation
- Stunning architect designed home
- Four double bedrooms
- Four bathrooms
- Impressive kitchen/dining room
- Four reception rooms
- Double height entrance hall
- Large Westerly facing garden
- Highly sought after location
- Periphery of world famous Epsom Downs
DESCRIPTION
With incredible attention to detail and truly impressive accommodation totalling a staggering 2900sq ft, this stunning detached family home has been the subject of one of the most comprehensive self-build programs that we have ever had the pleasure to represent.
This landmark property sits on a bold corner plot and was architect designed alongside our clients bespoke requirements and exacting standards. The result is an absolute masterpiece with a level of finish that is meticulous alongside the clever design that is highlighted by stylish design touches and vast amounts of natural light throughout the entire house.
As soon as you step into the stunning double height entrance hall with glass galleried landing, the incredible feel and flow of the property is immediately evident.
In our view this fine property provides the ultimate layout for a contemporary and practical family home that benefits from great school catchment and easy access of Tattenham Corner railway station as well as the open spaces of Epsom Downs with its world famous racecourse.
DESCRIPTION
With incredible attention to detail and truly impressive accommodation totalling a staggering 2900sq ft, this stunning detached family home has been the subject of one of the most comprehensive self-build programs that we have ever had the pleasure to represent.
This landmark property sits on a bold corner plot and was architect designed alongside our clients bespoke requirements and exacting standards. The result is an absolute masterpiece with a level of finish that is meticulous alongside the clever design that is highlighted by stylish design touches and vast amounts of natural light throughout the entire house.
As soon as you step into the stunning double height entrance hall with glass galleried landing, the incredible feel and flow of the property is immediately evident.
In our view this fine property provides the ultimate layout for a contemporary and practical family home that benefits from great school catchment and easy access of Tattenham Corner railway station as well as the open spaces of Epsom Downs with its world famous racecourse.
BOOK A VIEWING
Secure your priority viewing of this property by using the 'Book a viewing' form below or messaging us via WhatsApp.




