
Book A Viewing
All fields are required
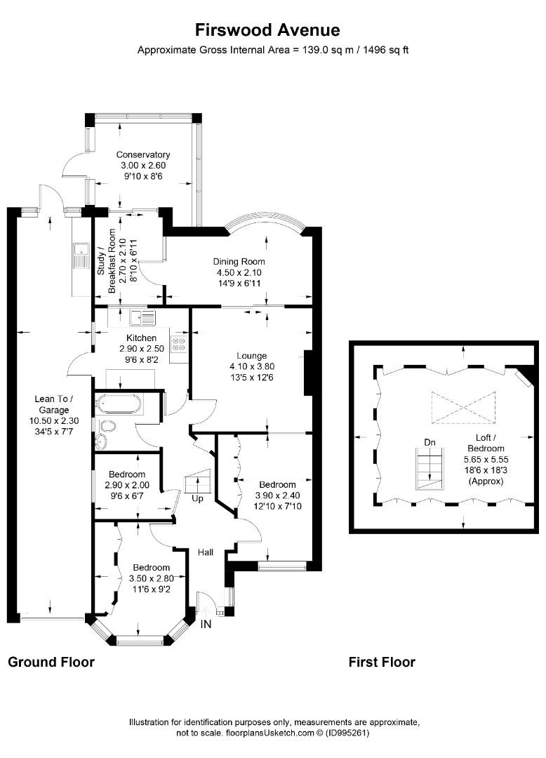
Firswood Avenue, Ewell 3 bed semi detached bungalow sold
Features
- Chain free
- Three Well Proportioned Bedrooms
- Large Open Plan Lounge Dining Room
- Additional Conservatory
- Converted Loft Room - With Potential To Convert Fully STPP
- Fitted Kitchen And Bathroom
- Private And Landscaped Rear Garden
DESCRIPTION
** CHAIN FREE – PRICED TO SELL ** The Personal Agent are delighted to welcome to the market this extended and bright three bedroom semi detached bungalow set within a popular and sought after residential road, minutes walk from Stoneleigh train station and Broadway.
The property itself has been extended to now offer three well proportioned bedrooms, a through lounge dining room, conservatory, fitted kitchen and bathroom; along with a lean to come garage area to the side of the property and a loft which has been converted into a ‘loft room’ but could be converted fully into a bedroom should the requires building controls and permission be obtained.
The property goes on to offer a private and landscaped rear garden while to the front of the property there is off street parking for multiple cars.
We really do recommend your earliest viewing to avoid missing out on a home sure to have high levels of interest.
DESCRIPTION
** CHAIN FREE – PRICED TO SELL ** The Personal Agent are delighted to welcome to the market this extended and bright three bedroom semi detached bungalow set within a popular and sought after residential road, minutes walk from Stoneleigh train station and Broadway.
The property itself has been extended to now offer three well proportioned bedrooms, a through lounge dining room, conservatory, fitted kitchen and bathroom; along with a lean to come garage area to the side of the property and a loft which has been converted into a ‘loft room’ but could be converted fully into a bedroom should the requires building controls and permission be obtained.
The property goes on to offer a private and landscaped rear garden while to the front of the property there is off street parking for multiple cars.
We really do recommend your earliest viewing to avoid missing out on a home sure to have high levels of interest.
BOOK A VIEWING
Secure your priority viewing of this property by using the 'Book a viewing' form below or messaging us via WhatsApp.




