
Book A Viewing
All fields are required
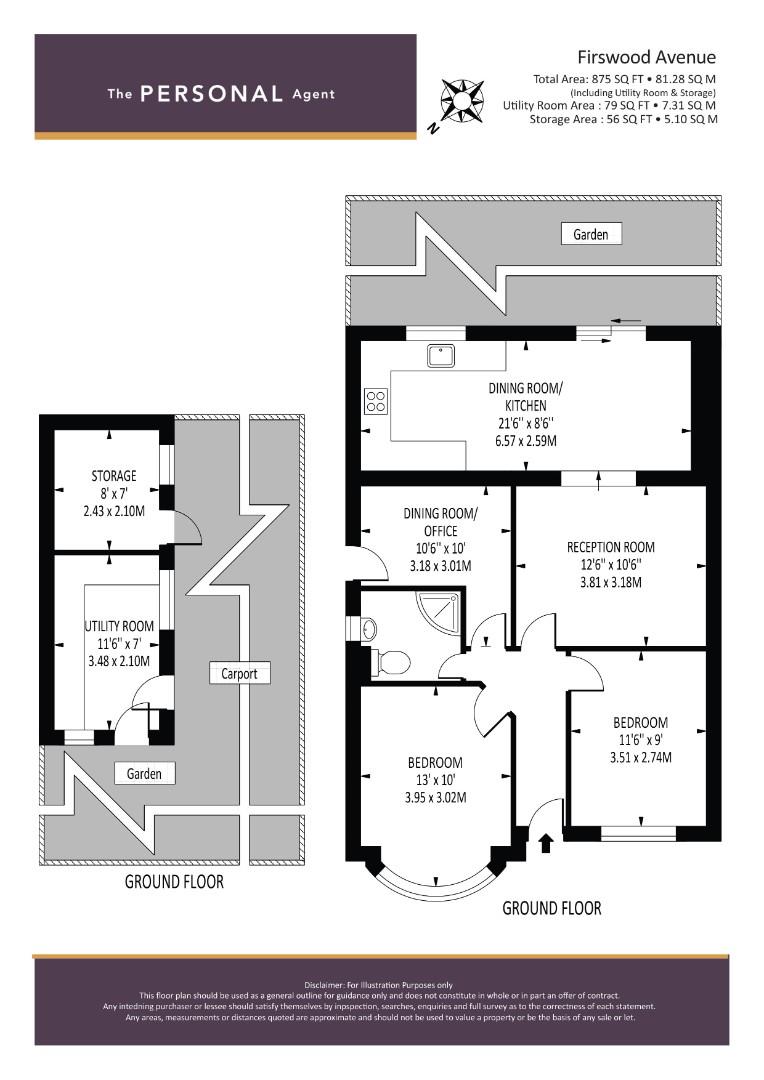
Firswood Avenue, Ewell 2 bed semi detached bungalow sold
Features
- Two Double Bedrooms
- Semi Detached
- Two Reception Rooms
- 21ft Kitchen / Dining Room
- Detached Summerhouse
- Southerly Aspect Garden
- Walk to Shop, Schools & Station
- No Chain
DESCRIPTION
This charming two double bedroom bungalow has been recently refurbished and extended by its current owners and is situated within walking distance of local shops, schools and Stoneleigh railway station.
The property offers a 21ft kitchen / dining room across the rear with sliding doors to the garden. This space is open plan to the first of two reception rooms.
To the front of the bungalow are two well proportioned double bedrooms and a shower room.
Outside, a driveway to the front provides parking for two to three cars, while to the rear is a southerly aspect garden which is home to a large, detached summerhouse which is currently part utility room and part storage.
Early viewing essential. No chain.
DESCRIPTION
This charming two double bedroom bungalow has been recently refurbished and extended by its current owners and is situated within walking distance of local shops, schools and Stoneleigh railway station.
The property offers a 21ft kitchen / dining room across the rear with sliding doors to the garden. This space is open plan to the first of two reception rooms.
To the front of the bungalow are two well proportioned double bedrooms and a shower room.
Outside, a driveway to the front provides parking for two to three cars, while to the rear is a southerly aspect garden which is home to a large, detached summerhouse which is currently part utility room and part storage.
Early viewing essential. No chain.
BOOK A VIEWING
Secure your priority viewing of this property by using the 'Book a viewing' form below or messaging us via WhatsApp.




