
Book A Viewing
All fields are required
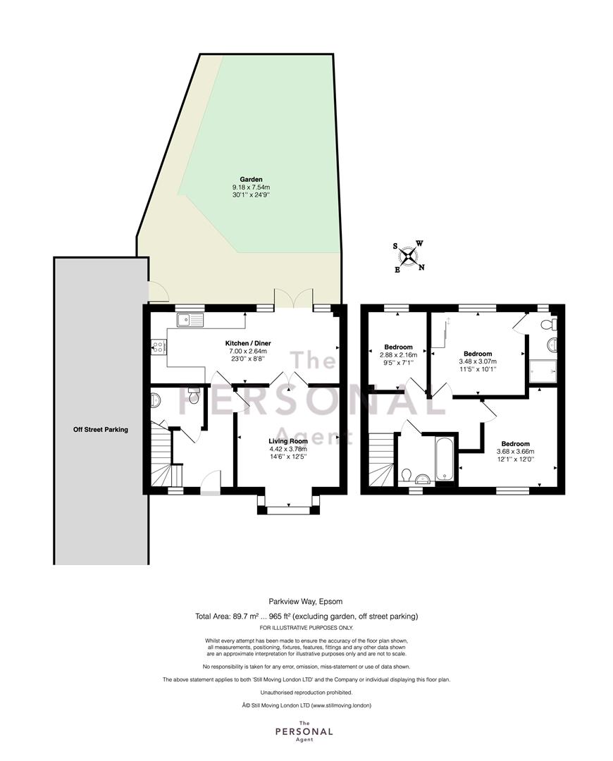
Parkview Way, Epsom 3 bed detached house sold
Features
- No ongoing chain
- Short walk of zone 6 station
- Three generous bedrooms
- Large reception room
- Kitchen/dining room
- Downstairs cloakroom
- En-suite shower room & main bathroom
- South/Westerly facing rear garden
- Double length driveway
- Close to open parkland
DESCRIPTION
Occupying a fantastic position within this highly sought after development and located approximately 50 metres from acres of beautiful private parkland, this extremely well appointed detached home warrants immediate inspection to fully appreciate everything it offers coupled with being offered with no ongoing chain.
The property enjoys a great sized South/West facing garden as well as a tandem driveway with off street parking for two cars to the side.
Being built with sustainable living firmly in mind and incorporating an air circulation/ventilation system with Eco friendly heat recovery system, this stunning modern home should be viewed at your earliest convenience.
Coupled with enjoying an enviable position, the property benefits from being just a short walk (8 minutes) from Ewell West railway station (zone 6) with a comprehensive service to London Waterloo taking just 34 minutes.
DESCRIPTION
Occupying a fantastic position within this highly sought after development and located approximately 50 metres from acres of beautiful private parkland, this extremely well appointed detached home warrants immediate inspection to fully appreciate everything it offers coupled with being offered with no ongoing chain.
The property enjoys a great sized South/West facing garden as well as a tandem driveway with off street parking for two cars to the side.
Being built with sustainable living firmly in mind and incorporating an air circulation/ventilation system with Eco friendly heat recovery system, this stunning modern home should be viewed at your earliest convenience.
Coupled with enjoying an enviable position, the property benefits from being just a short walk (8 minutes) from Ewell West railway station (zone 6) with a comprehensive service to London Waterloo taking just 34 minutes.
BOOK A VIEWING
Secure your priority viewing of this property by using the 'Book a viewing' form below or messaging us via WhatsApp.




