
Book A Viewing
All fields are required
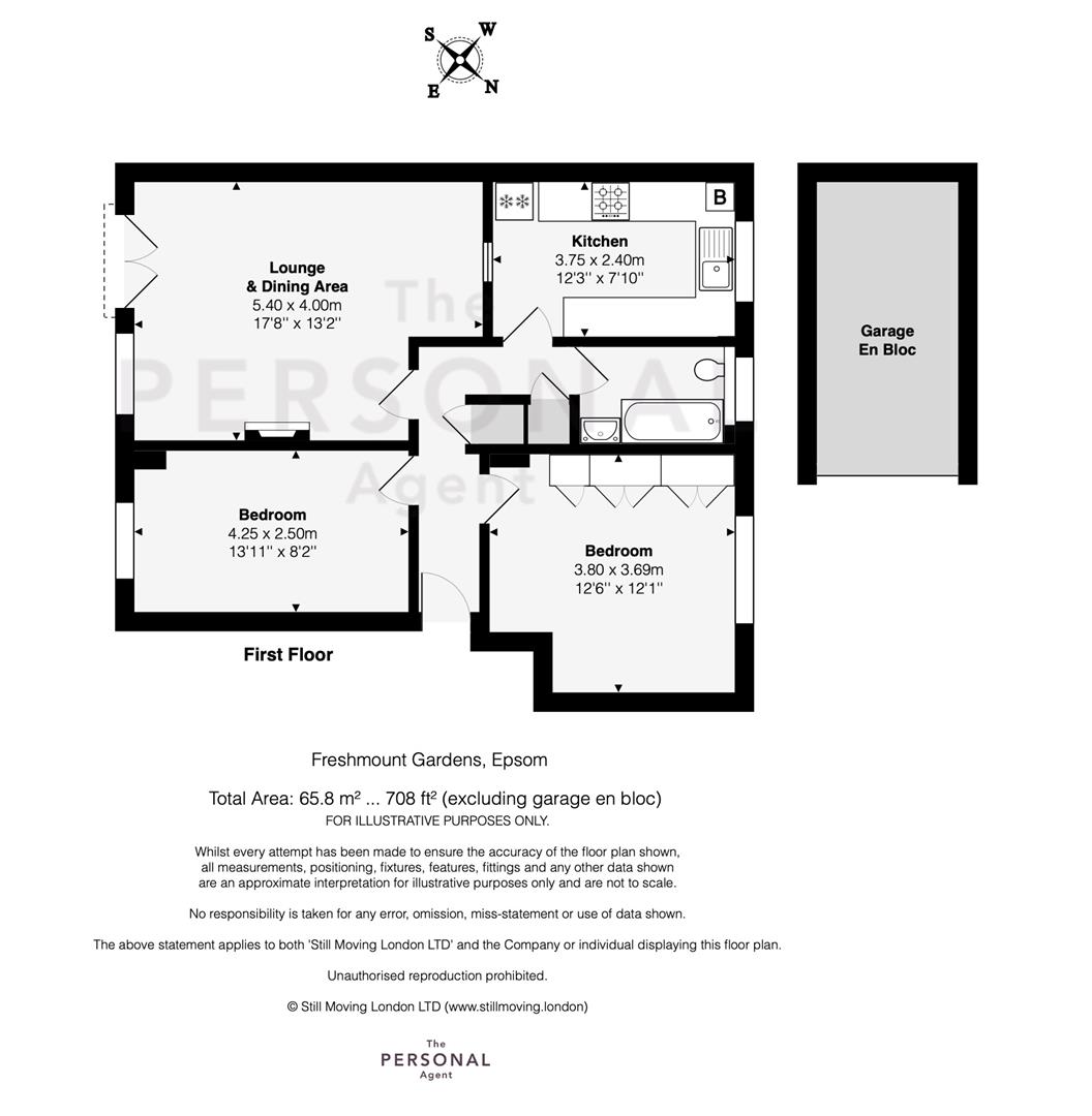
Freshmount Gardens, Epsom 2 bed flat for sale
Features
- Sought after Chase Estate location
- First floor apartment
- Two generous bedrooms
- Spacious lounge/dining room
- Double glazed & gas central heating
- Garage in block
- Walk to town & station
- Mature communal gardens
- 900 + year lease
- Amazing central position within development
DESCRIPTION
Situated in a rarely available development on the highly desirable Chase Estate, this spacious and well appointed first floor apartment is tucked away in a little known cul-de-sac and offered to the market in good order throughout.
The property offers lounge/dining room with a Juliette balcony and double doors providing a pleasant outlook over the communal grounds at the front. There is a fitted kitchen, two generous double bedrooms and a bathroom suite.
Further noteworthy points to mention include full double glazing, combi-boiler with gas central heating, original wood block flooring in the living room, all doors off the communal hallway are fire doors (replaced in 2020 to meet new fire regulations for flats) and there is also a garage in block.
DESCRIPTION
Situated in a rarely available development on the highly desirable Chase Estate, this spacious and well appointed first floor apartment is tucked away in a little known cul-de-sac and offered to the market in good order throughout.
The property offers lounge/dining room with a Juliette balcony and double doors providing a pleasant outlook over the communal grounds at the front. There is a fitted kitchen, two generous double bedrooms and a bathroom suite.
Further noteworthy points to mention include full double glazing, combi-boiler with gas central heating, original wood block flooring in the living room, all doors off the communal hallway are fire doors (replaced in 2020 to meet new fire regulations for flats) and there is also a garage in block.
BOOK A VIEWING
Secure your priority viewing of this property by using the 'Book a viewing' form below or messaging us via WhatsApp.




