
Book A Viewing
All fields are required
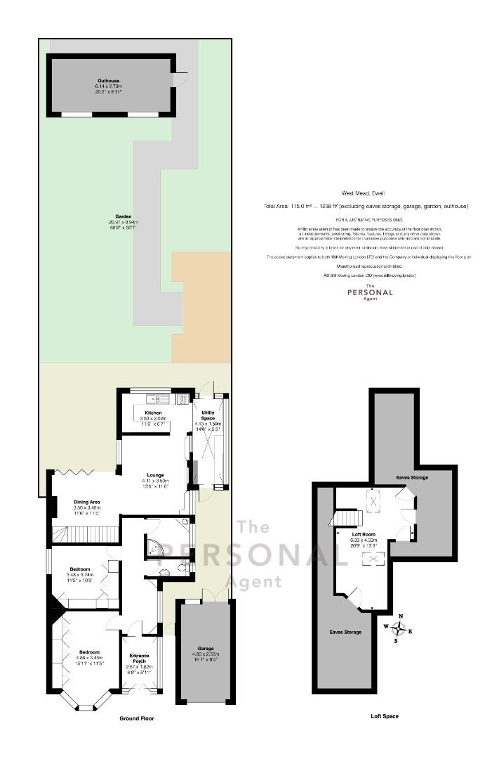
West Mead, Ewell 2 bed detached bungalow sold
Features
- Detached Bungalow
- Two Double Bedrooms
- Two Reception Rooms
- Refitted Bathroom
- Bright & Spacious Kitchen
- 20ft Loft Room
- Cul de Sac Location
- Driveway & Detached Garage
DESCRIPTION
This charming detached bungalow is situated in a highly sought after Cul de Sac in Ewell Court, next to the Hogsmill nature reserve.
The property offers two generous double bedrooms and a spacious dining room which is open plan to the lounge and has bi folding doors to the garden.
The bright and airy kitchen / breakfast room has a conservatory extension which has provided room for a table and chairs and further utilities.
DESCRIPTION
This charming detached bungalow is situated in a highly sought after Cul de Sac in Ewell Court, next to the Hogsmill nature reserve.
The property offers two generous double bedrooms and a spacious dining room which is open plan to the lounge and has bi folding doors to the garden.
The bright and airy kitchen / breakfast room has a conservatory extension which has provided room for a table and chairs and further utilities.
BOOK A VIEWING
Secure your priority viewing of this property by using the 'Book a viewing' form below or messaging us via WhatsApp.




